Zwei Häuser im Paket als Anlage in Schwanewede.
Beschreibung
Beschreibung:
Dieses Immobilienangebot umfasst zwei Einfamilienhäuser und drei Garagen, die sich auf einem ca. 1.247 m² großen Grundstück befinden.
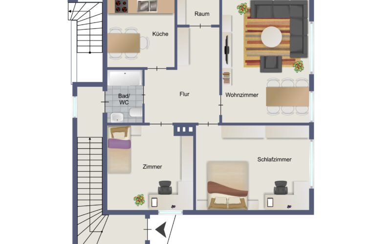
Haus A:
- zwei Wohneinheiten
- Wohnfläche: ca. 160 m²
- insgesamt 6 Zimmer
- EG u. OG
- Großzügiger Wohn-Essbereich, Schlafzimmer, Kinderzimmer, Küche und Badezimmer
- Terrasse/Gartenanteil und Balkon.
- Ölheizung 2008
- Bj.1968
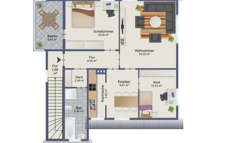
Haus B:
- Zwei Wohneinheiten
- Wohnfläche: ca. 160 m²
- insgesamt 7 Zimmer
- EG u. OG
- Wohn-Essbereich, Schlafzimmer, Kinderzimmer, Küche und Badezimmer
- Terrasse/Wintergarten u. Gartenanteil
- Ölheizung 1998
- Bj. 1958
- Keller
Alle 4 Wohnungen (Wohnfläche ca. 325 m²) sowie die Garagen sind vermietet und haben eine Mieteinnahme von 27.301,00 € p.a.
Details
| Verfügbar ab: | nach Absprache |
| Kaufpreis: | 429.000 EUR |
| Monatl. Mieteinnahmen (Ist): | 2275,12 EUR |
| Jährl. Mieteinnahmen (Ist): | 27301,00 EUR |
| Lage: | Schwanewede |
| Befeuerung: | Öl |
| Wohneinheiten: | 4 |
| Zimmer: | 12 |
| Schlafzimmer: | 6 |
| Badezimmer: | 4 |
| Kellerräume: | 3 |
| Wohnfläche: | 325 m² |
| Grundstücksfläche: | 1247 m² |
| Etagen: | 2 |
| Baujahr: | 1958 u. 1968 |
| Objektzustand: | Gepflegt |
Merkmale
Garage Garten Balkon Terrasse Einbauküche
Abstellraum Kabel/Sat-TV
Energiedaten
| Heizungsart: | Zentralheizung |
| Befeuerungsart: | Öl |
| Baujahr lt. Energieausweis: | 1958 u. 1968 |
| Energieeffizienzklasse: | G |
| Wert des Endenergiebedarfs: | 209,30 |
| Art des Energieausweises: | Bedarfsausweis |
| Gültigkeit des Energieausweises: | 11.04.2035 |




































